Il progetto per 56 Social Housing ad Arpajon si configura come un dispositivo urbano complesso, fondato sulla combinazione e sull’ibridazione di diverse tipologie residenziali all’interno di un lotto di circa 7.000 m², collocato nel perimetro di un’area di espansione urbana ai margini nord-occidentali della città. L’intervento, firmato da Jean & Aline Harari con Franck Lemoine, candidato agli EUMies Awards, risponde a un programma articolato che integra abitazioni sociali, spazi commerciali, funzioni collettive e parcheggi, proponendo una visione unitaria capace di superare la tradizionale separazione tra residenza e città.
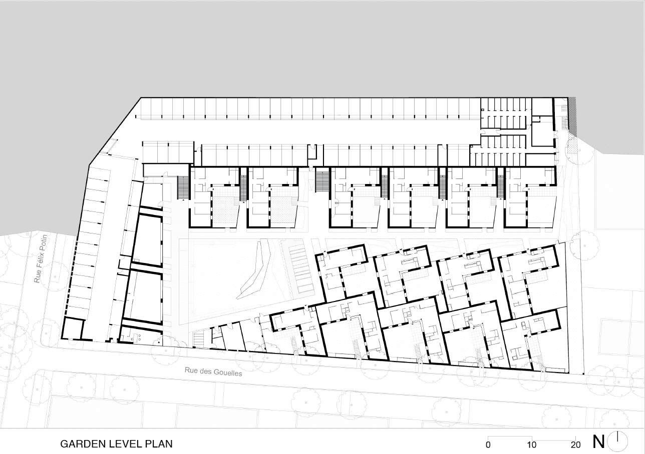
Il masterplan costruisce un forte “interno urbano”, chiaramente definito dagli edifici che si allineano lungo le tre strade perimetrali, mentre il cuore dell’isolato è occupato da uno spazio condiviso composto da un giardino centrale e da percorsi di distribuzione all’aperto. A nord, lungo rue de Chevreuse, due edifici principali ospitano 28 duplex sfalsati su più livelli, organizzati sopra un basamento commerciale. Questa tipologia, oggi raramente adottata, consente una notevole fluidità spaziale interna e una distribuzione estremamente efficiente, eliminando corridoi e spazi comuni chiusi a favore di pianerottoli e scale esterne.
La parte sud del lotto di Arpajon, caratterizzata da una quota più bassa, accoglie una sequenza di case patio a un piano, affiancate e contrapposte in modo da proteggere reciprocamente i giardini privati. A queste si affiancano abitazioni a L, collegate da una strada interna e sovrapposte a unità intermedie, generando una stratificazione tipologica che sostituisce il modello della casa unifamiliare isolata con soluzioni più compatte, adattabili e relazionali. In controtendenza rispetto alle consuetudini, i garage privati vengono eliminati, concentrando i parcheggi in un’area comune e liberando così suolo e spazio per la vita collettiva.
A ovest, un edificio di tre piani chiude il sistema urbano ospitando, sopra il parcheggio e gli spazi comuni, un grande appartamento comunitario destinato alla coabitazione e ulteriori alloggi, inclusi duplex. Le scelte tipologiche consentono di sostituire le tradizionali parti comuni condominiali – atri, pianerottoli interni, ascensori – con percorsi esterni, ballatoi, terrazze e scale aperte, riducendo i consumi energetici e rafforzando il carattere domestico e condiviso degli spazi.
L’intero complesso si presenta come un organismo unitario ma fortemente articolato, in cui i volumi si sovrappongono, si incastrano e si gerarchizzano, garantendo a ciascuna unità una chiara identità all’interno del sistema complessivo. La bassa altezza degli edifici enfatizza una dimensione orizzontale, in sintonia con il contesto ancora poco densificato e con la presenza visiva del paesaggio collinare circostante.
Dal punto di vista materico e costruttivo, il progetto di Arpajon adotta un linguaggio volutamente sobrio e riconoscibile, affidato all’uso esclusivo del laterizio: murature in mattoni pieni color rosso-ocra e coperture in tegole definiscono un’immagine domestica e durabile, radicata nella tradizione costruttiva. La struttura primaria è in calcestruzzo, mentre l’involucro è composto da una parete composita con isolamento diffuso e controparete esterna in laterizio; per le case a piano terra si impiegano strutture lignee e rivestimenti in legno di Douglas verso i giardini. Finestre in rovere, carpenterie metalliche leggere e una cura artigianale del dettaglio concorrono a riaffermare la qualità architettonica dell’edilizia sociale.
Il progetto integra inoltre strategie ambientali avanzate: isolamento in lana di legno, serramenti a triplo vetro, impianto di riscaldamento e produzione di acqua calda alimentato da caldaia a biomassa, gestione delle acque meteoriche attraverso il giardino centrale e spazi dedicati all’orticoltura urbana. Le prestazioni energetiche superano i requisiti normativi, raggiungendo elevati standard di certificazione ambientale e di utilizzo di materiali bio-based.
Nel suo insieme, l’intervento propone una rilettura critica dell’edilizia residenziale sociale, dimostrando come la combinazione di qualità tipologica, rigore costruttivo e attenzione allo spazio collettivo possa generare nuove forme di abitare, capaci di favorire la convivenza, l’inclusione e una rinnovata dignità architettonica.
Scheda progetto
Location: ZAC des Bellevues – rue de Chevreuse, rue Felix Potin, and rue des
Gouelles, Arpajon – 91290 – Essonne - France
Land area: 6,894 m²
Floor area: 5,378 m² including 984 m² of retail space
Living area: 3,990 m²
15 single-family homes, including 9 with patios and 6 L-shaped garden-level
homes
6 intermediate-sized houses
35 multi-family homes, including 1 10-room apartment for shared housing
Building density: 80 units/hectare
Photo: Antoine Mercusot





