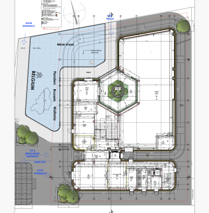
Il Belgium Pavilion è uno di quei padiglioni in cui contenitore e contenuto lavorano all’unisono per amplificare il messaggio da trasmettere. Il committente del padiglione è BelExpo, un commissariato generale per le esposizioni internazionali creato nel 2018 che si occupa della partecipazione del Belgio alle mostre internazionali rappresentando sempre le tre comunità che costituiscono la nazione, Brussels, Flanders e Wallonia. Per immaginare la società del futuro il padiglione ha proposto una riflessione sull’oro blu, l’acqua, simbolo di vita, fonte di vita, di energia, di tecnologia, asse di connessione con la natura, origine di salubrità e igiene nonché ispiratore di opere del belga René Magritte. Basti pensare che l’emblema del Belgio è una fontana, le “Manneken Pis”.
L’acqua e l’hexagone hanno un rapporto che li unisce da tempi molto antichi che ha permesso alla nazione, grazie al porto di Anversa, di conquistare il cuore delle relazioni commerciali internazionali. In Belgio, l’acqua è presente in tutte le fasi, liquida, solida e gassosa ed è proprio questo ad aver stimolato il gruppo di giovani progettisti Carré 7, consorziato con una squadra di architetti, ingegneri, imprenditori, che nel luglio del 2023 hanno vinto il concorso per il progetto del padiglione.
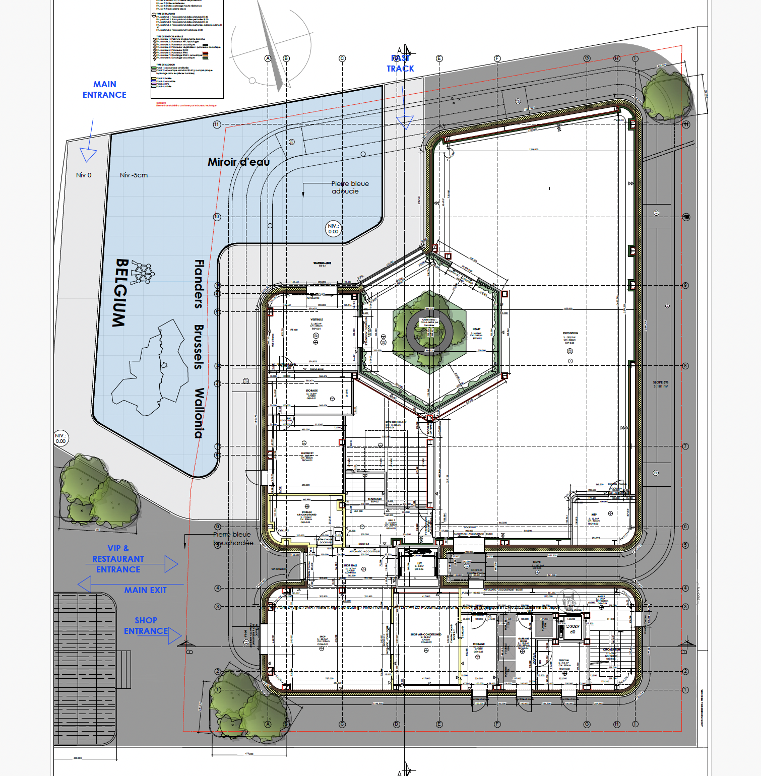
L’esterno dell’edificio è pensato per simboleggiare l’acqua in tutte le fasi, liquida - con una vasca che contorna l’edificio ma anche grazie al ritmo e alla translucenza del materiale utilizzato per le connessioni verticali, solida – con il rivestimento che caratterizza la sporgenza del primo piano richiamando una scatola di ghiaccio, gassosa – con delle bolle di acqua che fanno da coronamento dell’edificio, e richiamano simbolicamente a delle nuvole grazie anche all’uso di una struttura gonfiabile. “Abbiamo cercato di riprodurre le caratteristiche dell'acqua” affermano i progettisti, “dallo stato solido, rigido e immobile, allo stato liquido, dinamico, in movimento e infine, più leggero, allo stato gassoso, più aereo, più vaporoso e con forme più casuali. Ogni stato dell'acqua è visibile in qualsiasi punto del sito dell'Esposizione: dalla strada principale, dal Ring, dal padiglione vicino, insomma, i tre stati dell'acqua sono visibili e da ogni punto di Expo!”.
Lo scopo dei progettisti, lo studio Carré 7, è di trasmettere un’emozione al visitatore che attraversando i cambiamenti di stato dell’acqua ripercorre anche simbolicamente il cammino della vita di ogni essere umano: l’acqua allo stato solido rappresenta le fondazioni e l’ancoraggio dell’uomo sulla terra oltre al suo legame con la natura; lo stato liquido è l’evoluzione dell’uomo e la sua capacità di adattarsi; lo stato gassoso rappresenta lo spirito, la saggezza e la connessione profonda che esiste tra gli esseri viventi. I passaggi di stato sono dunque i diversi stati di elevazione della coscienza dell’uomo, che ovviamente ha un cuore da dove tutto inizia. Il focus dell’esposizione è infatti “Le Cœur”, uno spazio luminoso che unisce cielo e terra con facciate vegetali e una cascata. Rappresenta la vita, fatta di acqua e piante, e invita l’uomo a riconnettersi con la natura e l’essenziale. Simbolo della coscienza e fonte di luce zenitale, richiama la necessità di proteggere ciò che è vitale per l’umanità. “Le Cœur” è anche metafora del popolo belga: aperto, caloroso, festoso. Con la sua vitalità, i suoi rumori e la sua luminosità, incarna la “Belgitude”, ossia il folklore, la gioia di vivere e la convivialità tipica del Belgio. Inoltre, è concepito come spazio di incontro e condivisione, capace di far convergere le persone grazie ai collegamenti tra diversi livelli e ai giochi visivi, inoltre, la forma esagonale è un richiamo alla Nazione del Belgio, una rappresentazione della posizione centrale del Belgio in rapporto all’Europa, oltre che una connessione con la cultura giapponese che dell’esagono fa un motivo ispirato alla natura simbolo di longevità.
Il padiglione del Belgio è concepito come una struttura durevole, smontabile e modulare capace di avere una seconda vita dopo Expo. Anche gli spazi interni sono pensati per essere flessibili e riconvertibili, grazie a una struttura portante libera e materiali fissati meccanicamente. La scelta dei materiali ha un valore anche simbolico: la facciata iridescente rappresenta l’acqua solida, il ghiaccio, i cristalli e la sua rifrazione della luce; il rivestimento in policarbonato translucido simboleggia il movimento dell’acqua liquida, e diventa inoltre uno schermo sul quale proiettare giochi luminosi; la struttura gonfiabile a nuvola evoca l’acqua gassosa, copre gli impianti tecnici oltre ad essere una superficie scenografica di proiezione.
L’edificio è caratterizzato da una rampa interna ed esterna che connette i livelli, anima la facciata e offre visuali panoramiche sul sito espositivo sfruttando anche la posizione del padiglione in prossimità del Grand Ring.
Particolare attenzione è rivolta a sostenibilità ed efficienza energetica: isolamento ottimizzato, gestione innovativa delle acque meteoriche e sistemi di proiezione a basso impatto. L’ingresso, scenografico e aperto, guida il visitatore verso il “Cuore” centrale, mentre facciate e copertura sono concepite come superfici dinamiche e interattive, in grado di trasformarsi attraverso luci, trasparenze e proiezioni.
CREDITS:
Luogo: Expo 2025, Osaka, Japan
Committente: Belexpo (Conseilllés par la Régie dés bâtiments)
Architettura: Atelier d’architecture Carré 7 + Beyond Limits, OneDesigns, Pirnay Engineering e Polytech Engineering
Bureaux d’études : Pirnay, Polytech, A-Tech, Arter Paysage
Management et coordination: Beyond Limits
Architectes Japonais: Jun Mitsui & Associates
Entrepreneur: One Designs
Dimensione: 1000 mq





