Arroccato a 654 metri di altitudine, il borgo di Lottano appare come un organismo compatto, sospeso nel tempo, in cui la pietra racconta una continuità non interrotta dalle trasformazioni che hanno svuotato i paesi di mezza montagna nel secondo dopoguerra. Le tipologie edilizie, i materiali, perfino le modalità costruttive tramandano un sapere custodito più dall’abbandono che dalla cura: un equilibrio fragile che ha preservato l’identità del luogo.
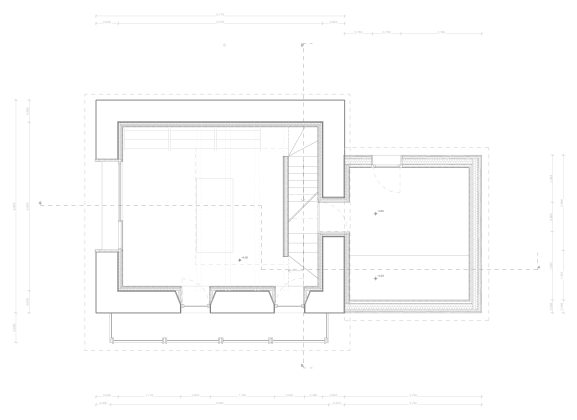
È in questo contesto che si inserisce il progetto di recupero, firmato da Emanuele Scaramellini, per un vecchio rustico posto sul margine estremo del nucleo, nel punto in cui il costruito incontra il bosco. Proprio questa condizione di soglia diventa la chiave interpretativa dell’intervento: la casa è filtro, cerniera, interfaccia tra realtà diverse. L’edificio, gravemente compromesso nelle sue parti lignee, con un corpo minore collassato e un tetto sventrato dalle infiltrazioni, mostrava tuttavia una struttura muraria sorprendentemente integra. La lunga crepa che incide la facciata sud – la più esposta verso il declivio e il bosco – diventa metafora e misura della tensione interna del manufatto.
"L’approccio progettuale non si limita alla conservazione, ma attua un processo di liberazione: ogni elemento viene interpretato secondo la sua natura più autentica, senza nostalgia e senza forzature mimetiche. Il nuovo non si impone, ma decanta; non imita, ma continua", racconta il comunicato stampa dedicato al progetto. L’intervento assume il compito di restituire senso e abitabilità a un’architettura marginale, trasformandola in testimonianza del possibile ritorno a un abitare alpino contemporaneo.
Le immagini del cantiere e dell’opera compiuta – dalle vedute aeree del borgo pre-intervento alle fotografie delle nuove facciate dialoganti con il paesaggio – mostrano la delicatezza dell’inserimento: un gesto calibrato, che rinnova la presenza della casa senza smarrire la sua appartenenza originaria. L’ibridazione tra materiali locali e soluzioni attuali non diviene contrasto, ma occasione di consonanza.
Riconoscimenti
Giovane Talento dell’’Architettura italiana 2024, Premio
CNAPPC Consiglio Nazionale Architetti Pianificatori Paesaggisti Conservatori
Addition in Architecture, Premio
SIAT Società Ingegneri Architetti Torino
Architettura Minima, Menzione
Abitare minimo in Montagna, Vione-Lab
Premio Europeo per l’architettura Contemporanea - EuMies Awards 2026, Nomina





