Nell'attraversare la pianura veneta, all’interno dell’area industriale est di Cittadella, lo Studio Bressan ha realizzato un progetto che rovescia le regole del contesto produttivo, trasformando un lotto ordinario in un’architettura capace di generare natura e spazio.
Il Green Village è un garden center di nuova concezione: un organismo architettonico composto da tre parti – edificio commerciale, serre vivaistiche e parco verde – che dialogano tra loro in un equilibrio calibrato di pieni e vuoti, materia e luce.
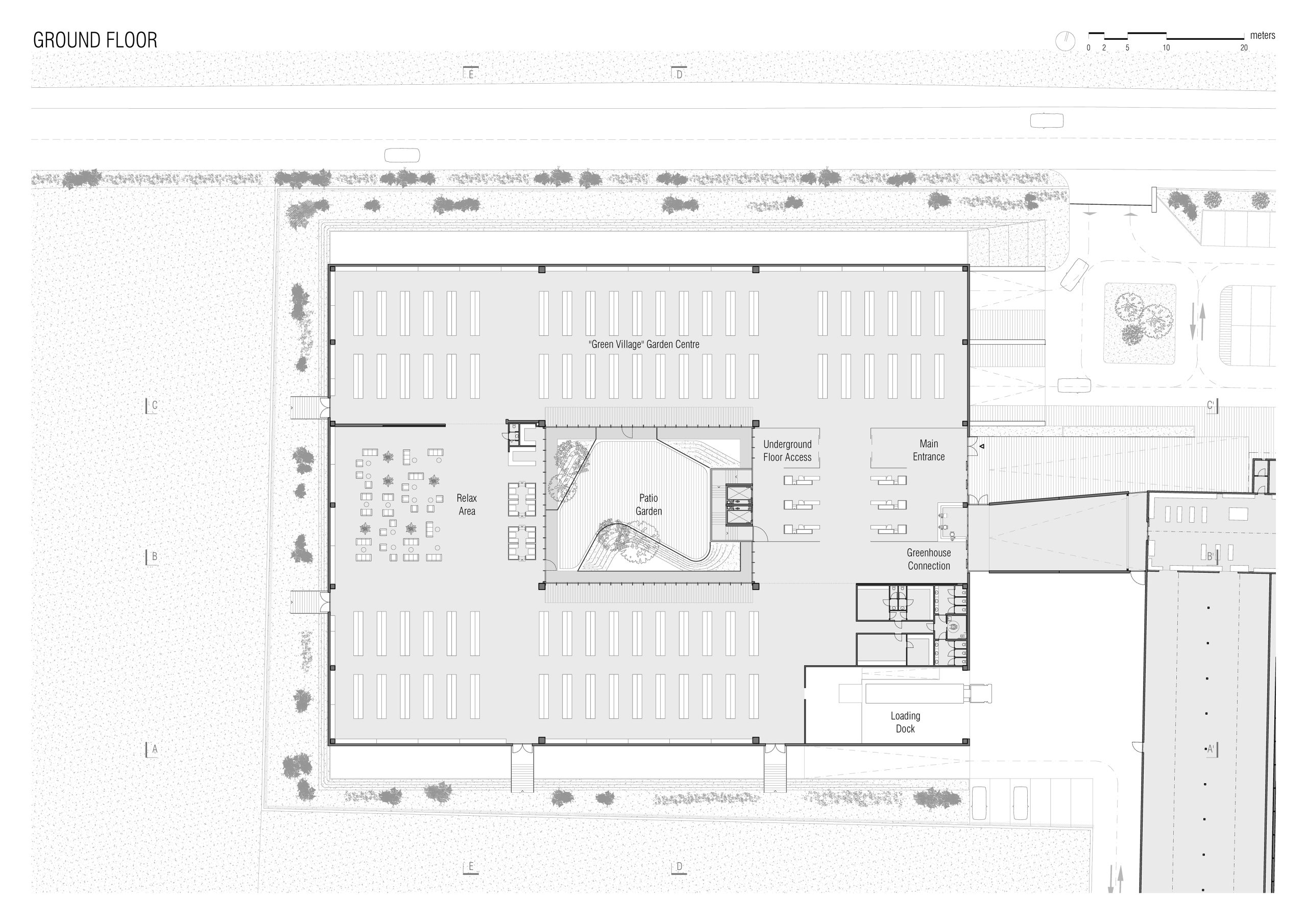
L’edificio principale, un volume compatto di 4.400 m², si articola su due livelli con un ampio patio centrale a doppia altezza, vero cuore dell’intero sistema. Come in una domus romana, la vita dell’edificio si sviluppa attorno a questo spazio di luce e di aria, che funge da corte, da showroom naturale e da cerniera visiva tra interno ed esterno.
La pianta, libera da pilastri centrali, consente una totale flessibilità funzionale: un ambiente continuo che si adatta alle diverse esigenze espositive e stagionali del centro.
Il volume commerciale, un parallelepipedo essenziale in calcestruzzo faccia a vista, rinuncia a qualsiasi forometria decorativa per affermarsi come una massa pura, compatta, interrotta solo da varchi e portali metallici che ne accentuano la solidità. La luce naturale proviene dall’alto, attraverso un tetto a shed e il grande patio vetrato, assicurando un’illuminazione diffusa e uniforme per tutto il giorno.
Il rapporto con il suolo è altrettanto misurato: il parcheggio interrato, realizzato a quota inferiore al piano di campagna dopo uno studio accurato della falda acquifera, contribuisce ad alleggerire la percezione volumetrica del complesso, che sembra fluttuare leggermente sopra il terreno.
Il Green Village è un’architettura silenziosa, costruita con logica industriale ma con sensibilità ambientale. L’uso di elementi prefabbricati ha consentito un processo rapido ed economico, senza rinunciare alla qualità spaziale e alla poetica della semplicità.
La corte interna, con le sue piante e il suo cielo, rappresenta un gesto di resistenza rispetto al paesaggio anonimo che la circonda: un giardino segreto nel cuore dell’industria, un luogo dove la natura si fa architettura e l’architettura diventa natura.
Con Green Village, Studio Bressan propone una riflessione sul tema dell’edificio commerciale come spazio di esperienza, capace di unire la razionalità costruttiva alla ricerca di una dimensione emotiva e percettiva.
Un progetto che dimostra come anche nei luoghi più ordinari possa nascere un’architettura capace di pensiero, misura e poesia.
Scheda progetto
Timing: 2011 / 2017
Category: Commercial building
Surface: 4.400 m2
Volume: 44.000 m3
Dimensions: 80 m x 60 m x 10 m
Customer: Pavin S.r.l.
Executing companies: EdilRodighiero, Nico Velo S.p.a, Termoidraulica Sbrissa S.r.l.
Photo: Emanuele Bressan





