Le Noroît è un progetto residenziale firmato da Guillaume Pelletier Architecte per una famiglia di quattro persone, situato su un terreno di quattro ettari nei Laurentidi, in Canada. I volumi della casa si ispirano all’architettura tradizionale, ma sono disposti in modo spettacolare: parte del progetto è sopraelevata, poggiando delicatamente sul terreno per proteggere il sito naturale. L’abitazione è sospesa sopra il paesaggio, diventando un’oasi di pace nel cuore della foresta.
La casa si trova su un piccolo altopiano roccioso posizionato a picco su un dirupo. I primi due livelli dell’edificio, distribuito complessivamente su tre piani, sono allineati, mentre il terzo è ruotato per garantire un accesso sicuro ed è a sbalzo, in una posizione pensata per proteggere l’ingresso principale, in basso.
"Dietro l’apparente semplicità del progetto si nascondono complessità normative, strutturali e costruttive", raccontano i progettisti.
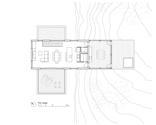
Il design degli interni di Le Noroît è semplice ed essenziale, con spazi che ricevono abbondante luce naturale e riscaldamento solare passivo attraverso le ampie vetrate panoramiche. L’uso del legno come principale materiale di finitura, in tonalità naturali e chiare, armonizza la casa con la foresta circostante. Il volume superiore è rifinito in legno bruciato (Yakisugi) e copertura in metallo nero, mentre le pareti interne sono rivestite in cedro rosso e isolate secondo gli attuali standard di efficienza energetica.
"Il progetto è stato pensato per creare connessioni di grande impatto tra la sommità e la base del dirupo, tra la roccia affiorante e un panorama magnifico – un effetto estremamente piacevole per una famiglia che vive in armonia con la natura", chiudono i progettisti.
Scheda progetto
Name: Le Noroît (Résidence du Noroît)
Location: Wentworth-Nord, Quebec
General contractor: Sarrazin Construction
Architect: Guillaume Pelletier Architecte
Design team: Éveline Gagnon, Ludovic Amyot, Vincent Morrier, Alexis Blais, Simon Fortier
Interior design: Atelier lou b design
Consultants: Coseb ing Structure
Siding: Arbres et bois & Juste du Pin
Roof: MAC Metal Architectural
Photos: David Boyer Photographe inc.
Clients: Audrey Langlois and Martin Boucher





