Immersa nel sottobosco della foresta landaise, a Contis, questa casa unifamiliare progettata dallo studio BAST + Littoral per una coppia di pensionati si inserisce con discrezione all’interno di un lotto privato affacciato sull’oceano Atlantico. Il progetto, candidato per gli EUMies Awards, nasce dalla volontà di preservare integralmente il carattere originario del sito, evitando l’abbattimento degli alberi e mantenendo il terreno nel suo stato naturale.
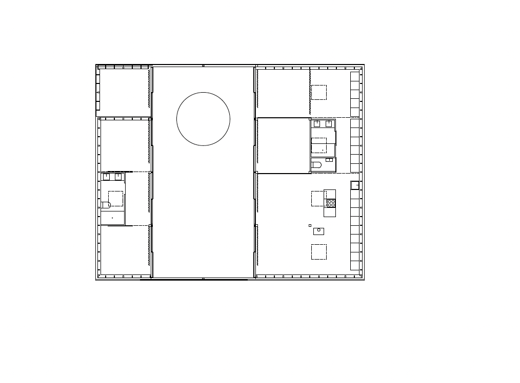
La costruzione assume una forma compatta e introversa, organizzata attorno a un patio centrale che diventa il vero fulcro spaziale e climatico dell’abitazione. Questo vuoto interno mette in relazione la casa principale, destinata all’uso quotidiano, e una dependance per ospiti, garantendo al tempo stesso autonomia e continuità. Due portali scorrevoli in vetro armato consentono di modulare il grado di apertura e di intimità del patio, trasformandolo in uno spazio protetto e controllato.
La struttura è realizzata con un sistema a ossatura lignea e travi e pilastri in legno, poggiati su una soletta in cemento levigato. La scelta costruttiva dialoga con il contesto naturale e contribuisce a definire un’atmosfera interna essenziale e materica. La copertura piana, risolta con una membrana tecnica, risponde alle prescrizioni del lotto senza compromettere la chiarezza volumetrica dell’insieme.
Le aperture verso l’esterno sono ridotte al minimo: i serramenti in alluminio anodizzato si affacciano esclusivamente sul patio, mentre l’illuminazione e la ventilazione naturale sono affidate a lucernari zenitali che portano luce e aria al cuore degli spazi. In questo modo, la casa si sottrae alla logica del lotissement circostante per ricostruire un rapporto diretto e silenzioso con la foresta, riaffermando una dimensione abitativa intima, misurata e profondamente legata al luogo.
Client: Private
Floor area: 150 m²
Budget: €320,000 (excl. VAT)
Status: Completed – November 2024
Lead architect: BAST
Associate architect: LITTORAL
Photography: BAST





