Nel tessuto eterogeneo dell’area industriale di Bari, lungo l’asse che collega la città al quartiere San Paolo e all’aeroporto, sorge la nuova sede di Nord Costruzioni Generali. Il progetto, firmato da BDFARCHITETTI, nasce dalla demolizione e ricostruzione di un edificio esistente, reinterpretato come un dispositivo architettonico capace di introdurre una dimensione rallentata e protettiva all’interno di un contesto caotico e fortemente urbanizzato.

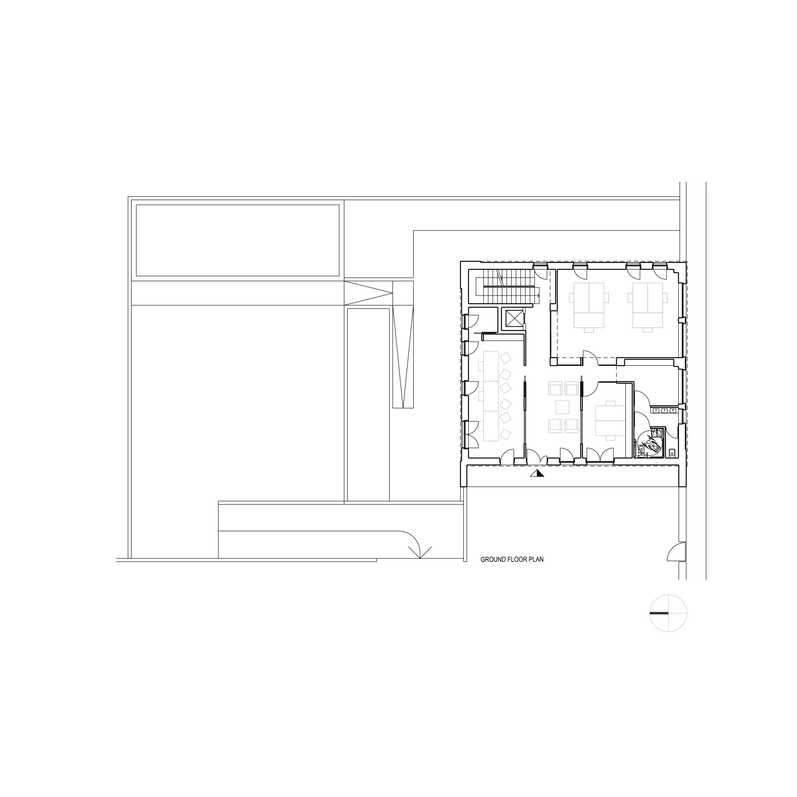
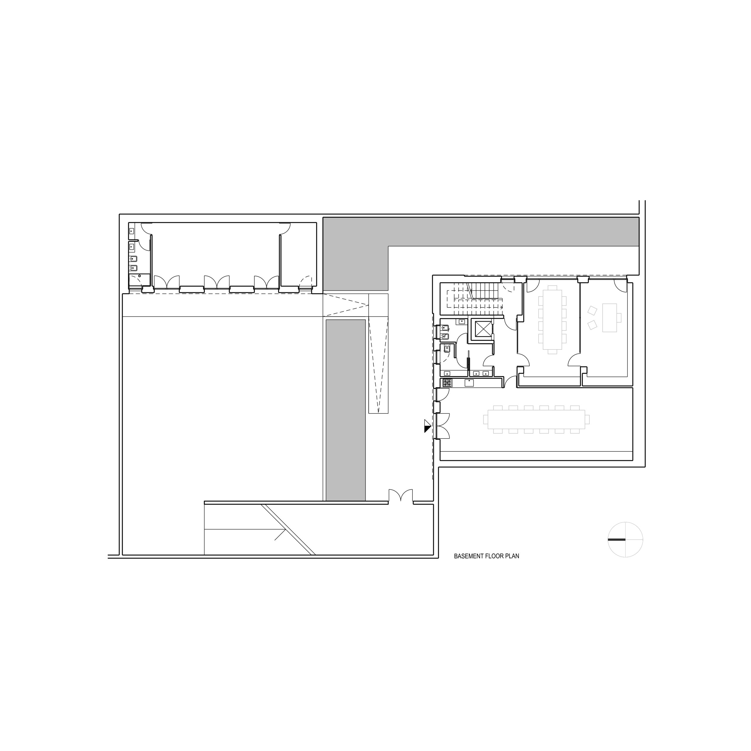
L’edificio accoglie al suo interno uffici direzionali, spazi operativi, laboratori e una terrazza affacciata sul canale Lamasinata, unico frammento naturale in un paesaggio dominato da capannoni e infrastrutture. L’obiettivo dei progettisti è quello di concepire un oggetto compatto, un volume quasi quadrato che si configura come una scatola muraria monolitica, caratterizzata da un involucro a spessore costante. Le aperture, incassate in fasce rientranti rispetto al filo di facciata, alleggeriscono la massa e definiscono la tripartizione base–corpo–coronamento.
La posizione del lotto, articolato su due quote differenti con un dislivello di circa quattro metri, diventa occasione per generare due spazi di relazione: una piccola piazza d’ingresso parzialmente coperta e, sul lato opposto, un cortile interno paesaggistico, che introduce luce e quiete negli ambienti di lavoro. Verso la strada, un muro in pietra funge da basamento e solleva visivamente il volume bianco, accentuandone la percezione di purezza materica.

"La costruzione è guidata da una lettura tectonica di matrice framptoniana, in cui la struttura in cemento armato non sovrasta né contraddice la logica continua dell’apparato murario", raccontano i progettisti. La parete monostrato, avvolta da isolamento e intonacata completamente in bianco, restituisce un linguaggio plastico coerente sia nella configurazione volumetrica sia nei dettagli costruttivi. Le aperture verticali, sottili e profonde, incorniciate da serramenti metallici neri, segnano il volume con tagli netti e calibrati.
Questa scelta monomaterica e la relazione calibrata con il paesaggio naturale richiamano volutamente una condizione mediterranea e rurale, reinterpretata in chiave contemporanea all’interno di un territorio compromesso dalla presenza di industrie. L’edificio diventa così un’architettura silenziosa, essenziale, in grado di generare un microcosmo di concentrazione e qualità spaziale, opponendo misura e densità espressiva alla frammentazione del contesto.

Scheda progetto
Title: NC Headquartes
Authors: BDFARCHITETTI (Vincenzo Paolo Bagnato, Pasquale Alessio De Nicolo)
Structures: Giovanni Nitti Ingegnere
Installations: APTECH Engineering
Client: Nord Costruzioni Generali srl
Place: Bari, Italy
Project type: Construction
Program: Office
Site area: 740 m2
Total gross floor: 145 m2
Cost: 1650 €/m2
Progetto nominato per gli EU Mies Awards 2026