Il progetto di ampliamento del complesso scolastico di Bernolákovo firmato dagli architetti Ľubomíra Blašková e Róbert Bakyta di Bakyta Architekti e candidato per gli EUMies Awards, si inserisce in modo misurato nel tessuto del centro del villaggio, caratterizzato da edifici pubblici di piccola scala e da un’intensa presenza residenziale. L’intervento affronta il tema dell’accrescimento volumetrico attraverso una strategia di integrazione paesaggistica: le nuove masse edilizie vengono parzialmente immerse nel terreno, riducendo l’impatto visivo verso le abitazioni circostanti e liberando ampie superfici verdi esposte a sud.
La nuova scuola, composta da due fasi progettuali – l’estensione dell’edificio esistente e la realizzazione di una palestra polifunzionale – si organizza secondo una composizione a L che, insieme al corpo originario, definisce un nuovo spazio pubblico: un parco attrezzato con area giochi, concepito come luogo di incontro e continuità urbana. Il nuovo padiglione scolastico presenta un impianto semplice e razionale, articolato attorno a un ampio corridoio centrale che funge da spazio di relazione per gli studenti e da zona filtro durante le pause. Le aule si affacciano su questo spazio attraverso un sistema di lucernari orizzontali che permettono alla luce invernale pomeridiana di penetrare in profondità negli ambienti didattici.
La palestra polifunzionale è collocata nella parte nord del lotto, lasciando la porzione meridionale completamente dedicata al verde. Collegata ai padiglioni scolastici tramite un passaggio interrato, l’edificio elimina ogni barriera a livello del suolo, garantendo la massima permeabilità dello spazio pubblico. La copertura verde, utilizzabile come area gioco sul tetto, è irrigata attraverso un sistema di raccolta delle acque piovane, rafforzando il carattere sostenibile dell’intervento.
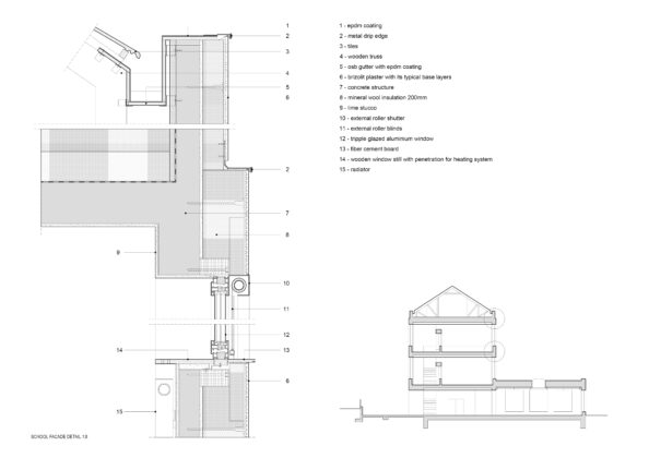
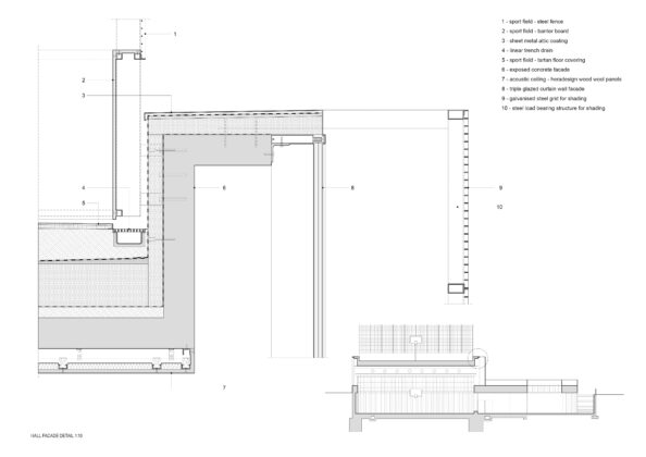
Dal punto di vista costruttivo, entrambi i nuovi edifici sono realizzati con strutture in cemento armato a telaio, pensate per garantire flessibilità e adattabilità nel tempo: le partizioni interne non portanti permettono infatti una facile riconfigurazione degli spazi. La palestra adotta travi in cemento armato precompresso, capaci di sostenere il carico del tetto praticabile, mentre la scuola riprende il linguaggio figurativo dell’edificio storico attraverso l’uso di capriate lignee, copertura in tegole e intonaco tradizionale Brizolit.
L’intento progettuale è quello di un’architettura sobria e silenziosa, capace di dialogare con il costruito esistente senza ricorrere a soluzioni formali effimere. Se il volume scolastico si inserisce in continuità con il passato, la palestra dichiara invece la propria autonomia attraverso un involucro industriale in lamiera grecata, lasciata nella sua finitura naturale. Un equilibrio calibrato tra memoria, funzione pubblica e contemporaneità definisce così un nuovo margine del centro abitato, aperto alla comunità e profondamente radicato nel luogo.
Scheda progetto
Site area: 11952 m²
Total gross floor: 3986 m²
Authors: Ľubomíra Blašková, Róbert Bakyta
Collaborators
Collaborator (office): Karina Humajová - BAKYTA architekti; Collaborator (office): Denis Zeman - BAKYTA architekti; Collaborator (office): Jaroslav Rell - BAKYTA architekti; Collaborator (office): Július Vass - BAKYTA architekti; Collaborator (office): Michal Pacher - BAKYTA architekti; Structure: Ján Majerník - miestor s. r. o.; Structure: Pavol Drha - DRHA PROJEKT s.r.o.; Lighting: Marek Gešnábel - EXTELI s.r.o.; Installations: Roman Kajan - Roman Kajan; Fire Safety and Accessibility: Pavel Kysel - SPRINKLER SYSTEMS s.r.o.





