La nuova sede di Prodis prende forma all’interno di due antiche navate industriali del complesso del Vapor Cortès, a Terrassa, trasformando un frammento significativo del patrimonio manifatturiero catalano in uno spazio civico aperto alla città. Il progetto, sviluppato da HARQUITECTES tra il 2020 e il 2024, si fonda su una lettura attenta dell’edificio esistente e sulla volontà di fare della memoria stratificata il principale materiale di progetto.
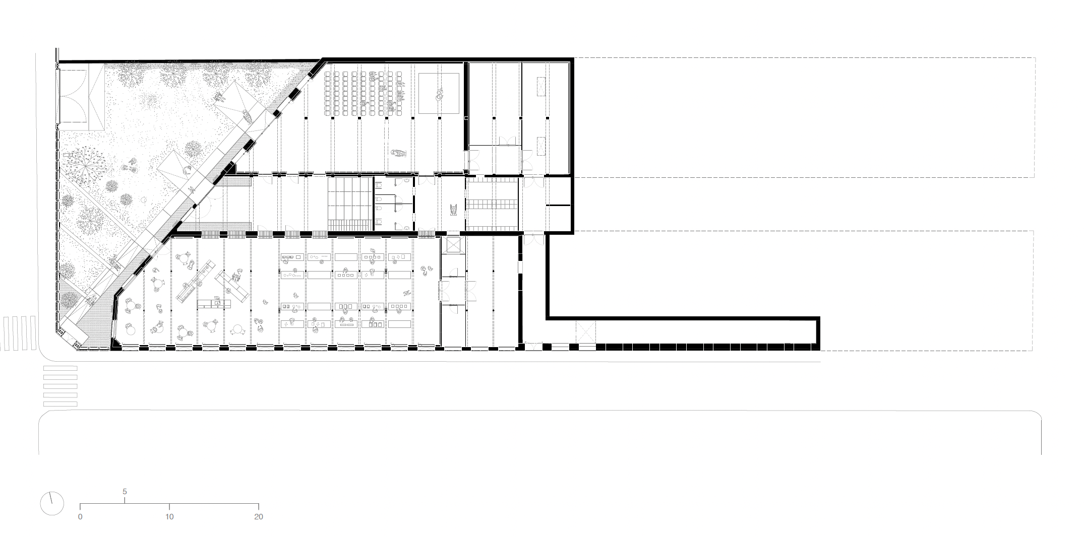
Le navate originarie presentano la tipica struttura industriale ottocentesca: muri portanti perimetrali in laterizio scanditi da pilastri a ritmo regolare, campate di dodici metri coperte da capriate lignee e una copertura tradizionale con correntini, listelli e tegole arabe. Nel tempo, lo spazio intermedio – l’antica strada di servizio – era stato progressivamente occupato da costruzioni ibride, alterando la chiarezza dell’impianto originario. Il valore del complesso non risiedeva tanto nella sua integrità formale, quanto nella sua struttura urbana “a pettine” (navata-strada-navata), nella sua dimensione archetipica di capannone industriale e nella sua imperfezione, frutto delle trasformazioni accumulate nel corso dei decenni.
Parallelamente alla riqualificazione fisica, Prodis avviava un profondo ripensamento della propria missione. L’obiettivo non era più soltanto offrire alle persone con disabilità un’attività produttiva protetta, ma aprire progressivamente l’istituzione alla società, favorendo l’interazione diretta con la cittadinanza e attribuendo al lavoro una dimensione più relazionale ed emotiva. L’architettura è chiamata a tradurre questa nuova visione in forma spaziale.
La strategia principale del progetto consiste nel recupero della strada centrale tra le due navate. Attraverso la demolizione selettiva dei solai e della copertura del corpo intermedio – mantenendo però le facciate e le travi che ne garantiscono la stabilità – nasce un passaggio che diventa come una vera strada urbana. Durante l’orario di apertura, questo spazio si trasforma in un luogo pubblico che organizza gli accessi e le attività del centro, favorendo l’incontro tra utenti e cittadini.
All’estremità del passaggio, una gradonata-scala risolve il dislivello tra le due quote urbane, trasformandosi in uno spazio di sosta e di relazione. Questo elemento conferisce al progetto una dimensione civica e culturale, invitando a sostare e non soltanto ad attraversare.
Lungo le due navate principali si distribuiscono i diversi ambienti: laboratori, aule formative, cucina e sala da pranzo, oltre agli spazi di supporto come servizi, sale riunioni e magazzini. La necessità di articolare l’ampia scala interna senza snaturarne l’unità trova risposta in un intervento strutturale puntuale. Nuove travi trasversali trasformano il sistema originario unidirezionale in uno bidirezionale, riducendo la luce delle capriate esistenti e consentendone la conservazione.
L’intersezione tra struttura storica e nuovi elementi genera una trama spaziale sottile che organizza e gerarchizza gli ambienti. I volumi più chiusi si configurano come “scatole” opache che svolgono anche funzione portante, mentre nei punti di incrocio si aprono lucernari zenitali che portano luce naturale al centro degli spazi principali. La luce e la struttura diventano così gli strumenti fondamentali di progetto.
Il nuovo intervento prosegue la logica costruttiva originaria basata sulla sovrapposizione di elementi lignei – capriata, correntino, listello – estendendola alle nuove travi, ai volumi chiusi e ai lucernari. È come se il sistema costruttivo storico si dilatasse per accogliere le esigenze contemporanee, mantenendo coerenza materica e costruttiva.
La copertura viene ripensata conservando l’immagine esterna in tegola araba, ma integrando soluzioni più leggere e performanti dal punto di vista energetico. Lo strato inferiore svolge anche funzione fonoassorbente, migliorando il comfort acustico. Le diverse stratificazioni costruttive definiscono inoltre i lucernari, dove elementi lignei verticali modulano la qualità della luce.
Le facciate vengono isolate internamente con un rivestimento in laterizio a vista che rispetta il ritmo originario. All’esterno si recupera il rapporto pieno-vuoto delle aperture storiche, mantenendo tuttavia le tracce delle trasformazioni subite: aggiunte, tamponamenti, modifiche. L’intervento non cerca un’immagine idealizzata, ma valorizza le “ferite” e le stratificazioni come parte dell’identità dell’edificio. La rimozione dei rivestimenti consente di riportare alla luce la struttura, intesa come matrice genetica e memoria trans-storica del complesso.
Dal punto di vista ambientale, il progetto integra strategie passive: elevato isolamento termico, ventilazione naturale, protezioni solari e muri trombe nelle aperture associate a spazi tecnici. L’edificio vive così in equilibrio tra interno climatizzato e passaggio aperto, facendo delle condizioni naturali parte integrante dell’esperienza architettonica.
Scheda progetto
Client: PRODISCAPACITATS FUNDACIÓ PRIVADA TERRASSENCA (PRODIS)
Architect: HARQUITECTES (David Lorente, Josep Ricart, Xavier Ros, Roger Tudó)
Collaborators: Maya Torres – Miquel Arias – Itziar González – Albert Ferraz – Andrea Arasa – Sara Ferran – Mariona Dalmau – Maria Azcárate
Team: DSM ARQUITECTES (structure), M7 ENGINYERS (installations), Carles Bou (quantity surveyor), SOCIETAT ORGÀNICA (environmental consulting), MC ACÚSTICA (acoustics), TERRITORIS XLM (planning), GEOMÈTRIC (topography)
Project years: 2020-2021
Construction years: maig 2022 - abril 2024
Built area: 3.842,2 m2
Photographer: Adrià Goula





