Progettato da JKMM Architects, il Tammela Stadium rappresenta il primo stadio ibrido per il calcio realizzato in Finlandia e un caso emblematico di integrazione tra architettura sportiva, residenza e spazio pubblico. Situato nel quartiere di Tampere, l’intervento – candidato per gli EUmies Awards – si inserisce in un isolato urbano compatto e ad alta densità, dando forma a un organismo complesso che combina infrastruttura sportiva, edifici abitativi, funzioni commerciali e servizi collettivi senza alterare la struttura storica del luogo.
Il progetto nasce da una lunga riflessione, avviata oltre dieci anni fa attraverso un concorso a inviti, con l’obiettivo di preservare la storica collocazione dello stadio di Tammela – attivo sin dagli anni Trenta – rispondendo al contempo alla necessità di densificazione urbana. La proposta vincitrice di JKMM, intitolata Hattutemppu (hat trick), affronta con un’unica strategia le questioni urbane, architettoniche, strutturali e infrastrutturali, trasformando i vincoli del sito in opportunità progettuali.
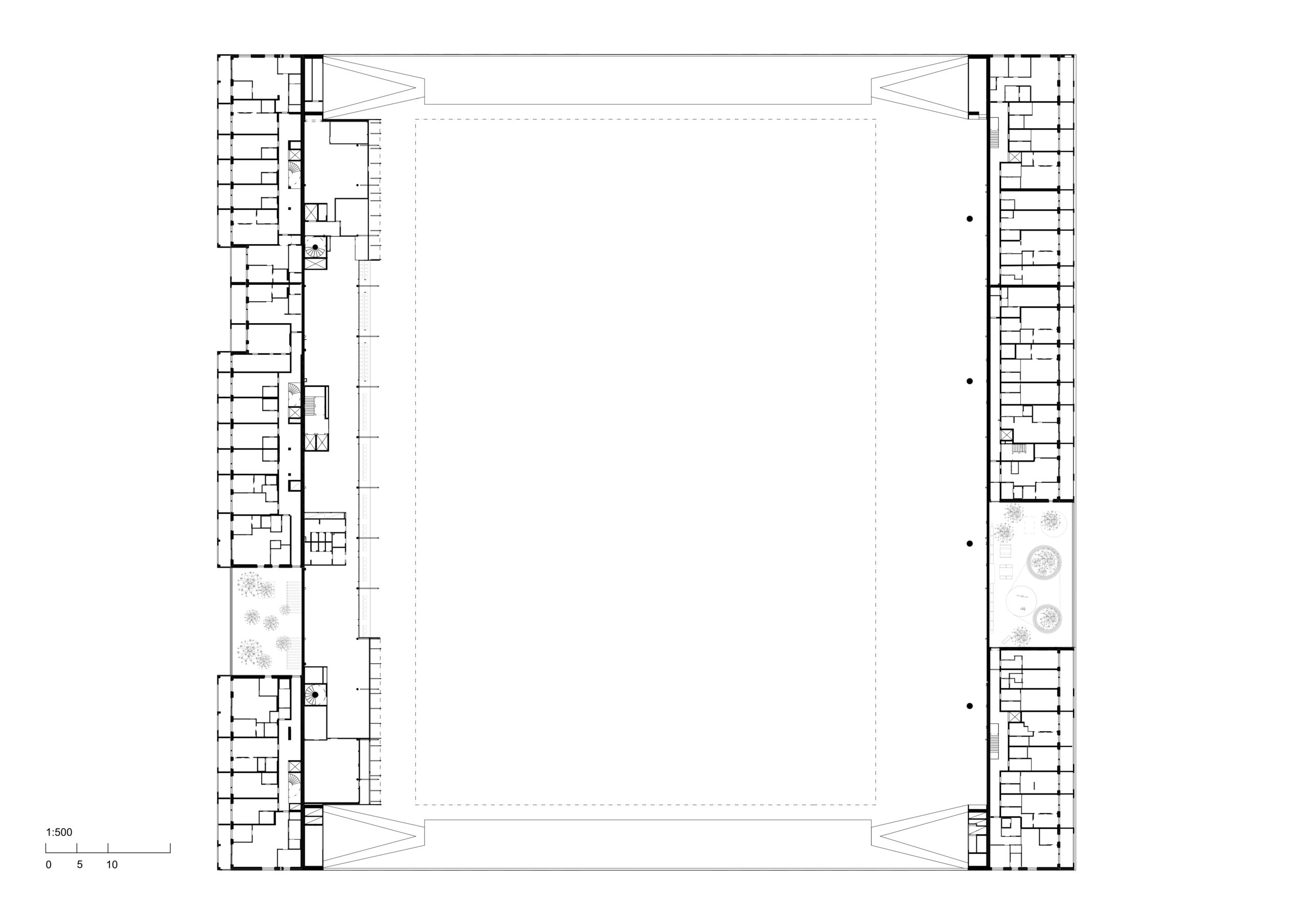
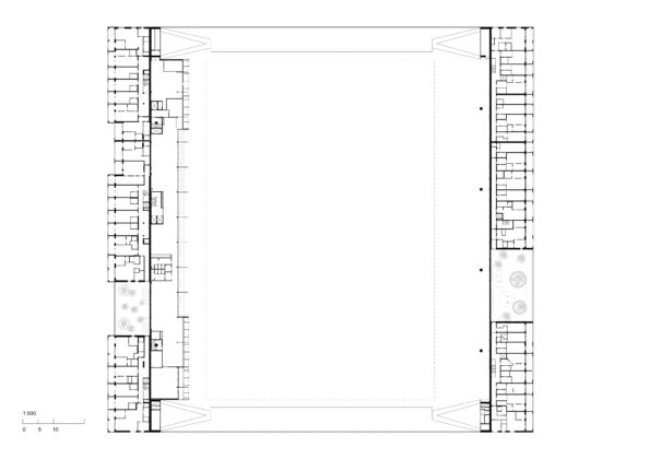
Il risultato è un edificio ibrido che può essere letto come una vera e propria “città in miniatura”: lo stadio da 8.000 posti, conforme agli standard UEFA di categoria 4, è inserito all’interno di un sistema edilizio che comprende cinque edifici residenziali, un centro commerciale e parcheggi interrati. Le gradinate sorgono direttamente dal bordo del campo, garantendo una visibilità totale da ogni posto a sedere, mentre gli ingressi vetrati proteggono il terreno di gioco dal vento mantenendo una forte continuità visiva e spaziale con l’esterno. L’impianto è inoltre concepito per ospitare fino a 15.000 persone in occasione di concerti ed eventi, ampliandone significativamente l’uso nel tempo.
Elemento iconico del progetto è la grande copertura ad arco sospesa in acciaio che attraversa l’intero isolato da est a ovest. Questa struttura non solo definisce l’immagine dello stadio nel paesaggio urbano, ma si estende sui tetti degli edifici residenziali, unificando formalmente le diverse parti del complesso e dichiarandone il carattere pubblico. La geometria della copertura è studiata per evitare l’ombreggiamento del campo e degli spazi adiacenti, dimostrando un’attenta integrazione tra forma architettonica, prestazioni ambientali e comportamento strutturale.
La sostenibilità del Tammela Stadium si fonda su strategie concrete e sistemiche: nessuna demolizione sul sito, riuso delle strutture esistenti in altri impianti cittadini, sfruttamento delle infrastrutture urbane già presenti e forte accessibilità tramite trasporto pubblico. Il complesso è collegato a una rete efficiente di teleriscaldamento e raffrescamento, mentre l’ottimizzazione delle strutture portanti e l’impiego di superfici di copertura chiare contribuiscono alla riduzione dei carichi energetici e degli inquinanti atmosferici.
Dal punto di vista costruttivo, l’architettura assume un carattere dichiaratamente tettonico: la struttura non è nascosta ma diventa linguaggio, articolando pilastri compositi in acciaio e calcestruzzo, travi saldate, elementi prefabbricati e grandi coperture sospese. I dettagli, massivi e quasi ruvidi a distanza ravvicinata, si ricompongono in un disegno leggero e quasi poetico nella visione d’insieme. Un approccio che riflette la stretta collaborazione tra architetti, ingegneri strutturisti e costruttori fin dalle prime fasi del progetto.
Più che un semplice stadio, il Tammela Stadium si configura come un’infrastruttura urbana aperta, capace di attivare lo spazio pubblico, rafforzare l’identità del quartiere e riportare la cultura calcistica nel cuore della città. Un progetto che dimostra come l’ibridazione tipologica e la qualità architettonica possano diventare strumenti efficaci per una densificazione sostenibile e socialmente inclusiva.
Scheda progetto
Capoprogetto: Samuli Miettinen
Partner fondatori: Asmo Jaaksi, Teemu Kurkela, Juha Mäki-Jyllilä
Progettazione strutturale: Ramboll Finland Oy
Progettazione impiantistica: Granlund Tampere
Progettazione paesaggistica: VSU maisema-arkkitehdit Oy
Impresa principale: Pohjola Rakennus Oy Suomi
Opera d’arte:
Installazione luminosa Puolenvaihto di Tommi Grönlund e Petteri Nisunen
Fotografie: Hannu Rytky, Tuomas Uusheimo





